箱型固定式金屬封閉開關設備產品概述:
XGN66-12箱型固定式交流金屬封閉式開關設備(以下簡稱開關柜)適用于3.6~12k V相二交流50Hz系統中作為接受與分配電能的裝置,適合于頻繁操作的場所和配裝油開關的開關柜改造之用。其母線系統為單母線系統和單母線分段系統。
開關柜符合GB3906《3.6~40.5kV交流金屬封閉開天設備和控制設備》和DL404《戶內交流高壓開關柜訂貨技術條件》的要求,開關柜外形美觀、體積小、具有完整可靠的防誤操作功能。開關柜內配裝的主開關VS1-12型或ZN28-12型真空斷路器,隔離開采用GN30-12、GN19-10型隔離開關,接地開關采用JN15-12型接地開關。
箱型固定式金屬封閉開關設備型號及含義:

箱型固定式金屬封閉開關設備使用條件:
◆ 環境溫度:最高+40℃,最低-15℃;
◆ 海拔高度:不超過1000m;
◆ 相對濕度:日平均值不大于95%,月平均值不大于90%;
◆ 地震強度不超過8級;
◆ 無火災、爆炸危險、嚴重污穢、化學腐蝕及劇烈震動的場所。
箱型固定式金屬封閉開關設備主要技術參數:

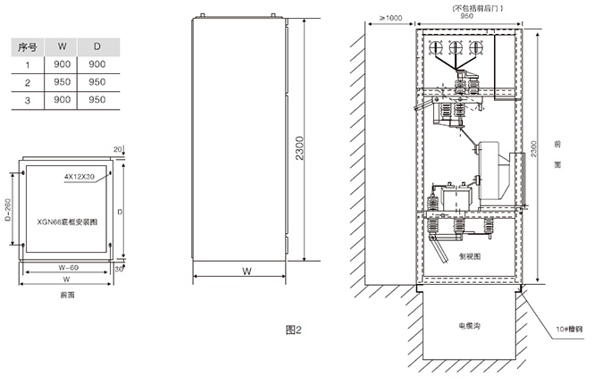
箱型固定式金屬封閉開關設備安裝尺寸及基礎示意圖:
◆ 安裝基礎參考圖(2),基礎槽鋼突出地面1-3mm,每米范圍內不平度不應超過1.5mm,全長范圍內不超過5mm。
◆ 將開關柜按順序放置于基礎上,調整好安裝的位置。然后用M12螺栓或者用點焊方法進行固定, 與柜柜之間用M8螺栓并緊。
◆ 拆開后蓋板安裝主母線和一次電纜,端子接觸面應注意清理干凈并涂中性凡士林。安裝好后注意封堵好一次電纜孔。
◆ 連接柜間接地母線, 沿使開關柜排列方向連成一體,查檢接地是否有遺漏,接地回路是否連續導通,接地電阻應不大于1Ω。
◆ 安裝二次電纜,電纜由柜前底部引入,順側壁進入繼電器室,分接于端子排上;裝好后封堵電纜孔。
◆ 清理柜內灰塵雜物。


箱型固定式金屬封閉開關設備投運:
投運前應進行如下檢查和調試:
◆ 根據訂貨要求檢查柜內安裝的電氣元件的型號與規格是否相符;檢查緊固件是否松動;檢查一、二次配線是否正確;操作隔離開關、接地開關、斷路器、機械聯鎖3~5次,應靈活無卡滯現象,聯鎖滿足“五防” 要求,然后對機械活動部位加注潤滑脂。
◆ 按說明書和出廠試驗報告檢查開關柜的絕緣水平和回路電阻、斷路器的機械特性,試驗結果應與出廠試驗報告相符或相近。
◆ 對繼電器或微機測控裝置上的電氣參數進行整定。
◆ 按說明書進行停送電操作。
箱型固定式金屬封閉開關設備維護與檢修:
用戶應定期對開關柜進行維護與檢修,內容有:
◆ 清掃各部位灰塵,特別是絕緣件表面的積塵;
◆ 檢查機械活動部位,定期加注潤滑油脂,使之保持動作靈活可靠;
◆ 檢查電接觸部位接觸是否良好,有無過熱現象,接地回路是否導通;
◆ 定期檢查緊固件是否緊固;用戶一般應在專業人員的協助下進行故障檢修,如屬少許調整和小故障,用戶自行檢修應;照本說明書主要和元件各自的說明書進行。
箱型固定式金屬封閉開關設備出廠資料:
制造廠供貨時應提供下列文件及附件:
◆ 發貨清單;
◆ 產品合格證及出廠試驗報告;
◆ 使用說明書;
◆ 有關電氣圖紙;
◆ 主要元件說明書;
◆ 柜門鑰匙,操作手柄及合同單規定的備品備件。
箱型固定式金屬封閉開關設備訂貨須知:
訂貨時應提供下列技術資料:
◆ 主接線方案編號、用途和單線系統圖、額定電壓、額定電流, 額定短路開斷電流、 配電室平面布置圖及開關柜的排列配置圖等;
◆ 開關柜控制、測量及保護功能的要求以及其它閉鎖和自動裝置的要求及原理圖;
◆ 開關柜內主要電氣元件的型號,規格及數量;
◆ 如開關柜之間或進線柜需要母線橋連接,應提供母線橋的額定載流量,母線橋的跨度,距地高度等具體要求數據;
◆ 開關柜使用在特殊環境條件時,應在訂貨時詳細說明;
◆ 其它特殊要求,在訂貨前須詳細書面說明、協商。如訂貨合同中有所用變柜,地基制作請按照提供的基礎圖施工。